Ricerca rapida
-
-
CERCA

Albavilla
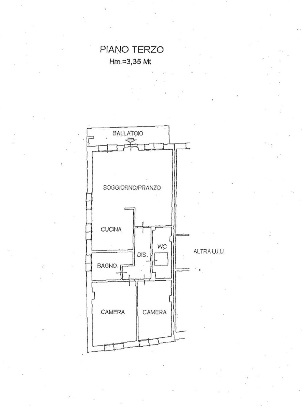
ALBAVILLA TRILOCALE ULTIMO PIANO MANSARDATO

3 locali

ALBAVILLA TRILOCALE ULTIMO PIANO MANSARDATO ALTO E MOLTO LUMINOSO: proponiamo nel centro di Albavilla appartamento al terzo e ultimo piano con caratteristiche travi a vista amèpio trilocale composto da: ingresso da balcone privato, soggiorno con cucina, disimpegno, camera da letto matrimoniale, seconda camera da letto, 2 bagni. Riscaldamento autonomo.
L'appartamento è libero e subito disponibile, in ottime condizioni, luminoso e con ottime finiture. Prezzo: €. 132.000,00
classe energetica "D" EP gl, nren 185,96 Kwh/m2anno

Caratteristiche

Codice
T021
Prezzo
132.000,00 EUR
Spese condominiali
450,00 EUR
Mq
86
Classe
D (185,96 [kWh/m²a])
Locali
3
Camere
2
Bagni
2
Mq Balcone
6
Stato Immobile
Buono
Posizione
Centro
Panorama
Vista Aperta
Lati Liberi
3
Tipo Soggiorno
Soggiorno
Tipo Cucina
Abitabile
Riscaldamento
Autonomo
Infissi
Legno Doppio Vetro
Serramenti
Ottimo
Persiana
Oscurante Legno
Pavim. Giorno
Gres Porcellanato
Pavim. Notte
Gres Porcellanato
Pavim. Cucina
Gres Porcellanato
Pavim. Bagno
Gres Porcellanato
Accessori
Doppi Vetri

VIDEO

MAPPA

VIA XX SETTEMBRE 12, Albavilla (CO)
Richiedi informazioni
Codice:
Nominativo: *
Telefono: *
Email: *
Dettagli richiesta: *
Autorizzo il trattamento dei miei dati personali in base Regolamento UE n. 679/2016 - Privacy Policy
Invia
Cookie preference